Where Engineering meets Precision

Bottom Discharge Centrifuge

bottom Discharge

The Bottom Discharge Centrifuge, also widely known as the Vertical Peeler Centrifuge in Europe, is a fully automatic solid-liquid separation system designed for efficient handling of medium to large batch processes. Unlike Top Discharge models, where manual cake removal is necessary, this machine ensures automatic cake discharge through an integrated scraper mechanism, making it highly suitable for applications demanding consistency, safety, and reduced operator intervention.

Engineered for industries such as pharmaceuticals, fine chemicals, agrochemicals, food processing, and specialty materials, the Bottom Discharge Centrifuge combines high separation efficiency with gentle cake handling, making it ideal for crystalline and fragile products.

360

Click on the image and drag

Working Principle

In this centrifuge, the slurry is fed into the rotating basket lined with a filter bag. The centrifugal force drives the liquid phase through the filter medium and basket perforations, leaving the solid cake deposited on the basket wall. Once the filtration and drying stages are complete, the discharge cycle begins:

Key Features

Automatic Scraper Mechanism

Hydraulically or pneumatically operated scraper for complete and reliable cake removal.

Versatile Scraper Design

Single Action Scraper for free-cutting, softer cakes.
Dual Action Scraper for harder, compact cakes requiring additional cutting force.

Residual Heel Removal System

Air/N₂ blow-off nozzles ensure complete cake removal for clean batches.

Flexible Filter Bag Support

Bags held by tensioned rings and screws, optionally reinforced with backing cloth/mesh to prevent distortion during scraping.

Operator Safety & Cleanability

Enclosed casing design minimizes exposure; optional CIP (Clean-in-Place) systems available.

GMP-Compliant Construction

Smooth, crevice-free surfaces with provision for CIP/SIP cleaning.

Robust Engineering

Heavy-duty design ensures long service life and reduced maintenance needs.

Advantages

Applications

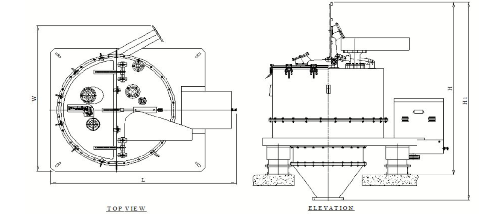
Technical Data - Bottom Discharge Centrifuge​

VBC - BD 32” x 16” 36” x 20” 42” x 20" 48" x 24" 48 "x 32" 60” x 24” 60” x 30” 64” x 32” Units
Basket Diameter
800
915
1067
1220
1250
1500
1500
1600
mm
Basket Height
410
510
490
610
800
610
760
800
mm
Filter Surface Area
1.00
1.47
1.64
2.3
3.14
2.87
3.58
4.02
m2
Useful Volume
100
176
221
350
500
600
746
900
Ltrs.
Max Load at Bulk Density 1.0
100
176
221
350
500
600
746
900
kg
Max. speed of Basket
1200/1500
1100/1400
1000/1300
900/1200
900/1200
800/1000
800/1000
800/950
rpm
Max G Force
644/1006
618/1002
596/1008
552/982
566/982
536/1006
536/838
572/807
Centrifuge weight (with load)
2000/2500
3000/4000
3800/4800
4200/5200
5000/6500
6000/7500
7500/9000
8000/10000
kg
Motor Power for main drive
5/7.5
7.5/10
10/15
20/25
25/30
30/40
30/40
40
HP
Machine Length
1900
2250
2350
2400
2500
2800
3000
3000
mm
Machine Width
1550
1750
1800
2000
2300
2300
2400
2500
mm
Height (Lid Open)
2300
2575
2300
2450
2650
2650
2850
2950
mm
Total Height (H1)
2500
2825
2600
2800
3200
3250
3350
3500
mm

Technical Data - Bottom Discharge (Full Body Open) Centrifuge​

VBC - BD 32” x 16” 36” x 20” 42” x 20" 48" x 24" 48 "x 32" 60” x 24” 60” x 30” 64” x 32” Units
Basket Diameter
800
915
1067
1220
1250
1500
1500
1600
mm
Basket Height
410
510
490
610
800
610
760
800
mm
Filter Surface Area
1.00
1.47
1.64
2.3
3.14
2.87
3.58
4.02
m2
Useful Volume
100
176
221
350
500
600
746
900
Ltrs.
Max Load at Bulk Density 1.0
100
176
221
350
500
600
746
900
kg
Max. speed of Basket
1200/1500
1100/1400
1000/1300
900/1200
900/1200
800/1000
800/1000
800/950
rpm
Max G Force
644/1006
618/1002
596/1008
552/982
566/1006
536/838
536/838
572/807
Centrifuge weight (with load)
2250/2800
3000/4000
4200/5200
4500/5500
5000/6500
7000/8500
8000/9500
9000/10500
kg
Motor Power for main drive
5/7.5
7.5/10
10/15
20/25
25/30
30/40
30/40
40
HP
Machine Length
1900
2250
2350
2450
2500
3000
3100
3100
mm
Machine Width
1400
1600
1650
1900
2300
2200
2350
2400
mm
Height (Lid Open)
2100
2300
2550
2700
3050
3050
3200
3350
mm
Total Height (H1)
2400
2600
2900
3050
3400
3600
3750
3900
mm